Divisionsgränd 16, Östersund

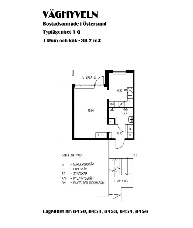
  • 1 rum och kök, 38 m²

 
Visa stor bild Visa stor bild Visa stor bild Visa stor bild
  • Tillträde: 2026-06-15
  • Ev. möjlig inflyttning: 2026-06-15
  • Anmäl senast: 2026-03-17

Objektsinformation

  • Adress:
  • Divisionsgränd 16
  • Obj.nr:
  • 2557-8453
  • Lgh.nr:
  • 0901
  • Rum:
  • 1 rum och kök
  • Boyta:
  • 38 m²
  • Våning:
  • -1 av 1
  • Hyra:
  • 6 395 kr
  • Byggt:
  • 1971
  • Hiss:
  • Hiss saknas
  • Fastighet:
  • Byggnad:

Mer information

Välkommen till denna trevliga !:a, lägenheten är belägen en trappa ned och har balkong i markplan. 


Parkettgolv samt vitmålade väggar, vitt kök med rostfri kyl/frys samt diskmaskin (45 cm). 
Badrummet är helkaklat med golvvärme, handdukstork kommod under tvättstället samt tvättmaskin. 


Lägenheten har även en säkerhetsdörr inmonterad. 

Det kommer EJ vara någon visning av denna lägenhet då det är en byggarbetslats  fram till inflytt.

I månadshyran ingår värme, uppvärmning av vatten samt digital-TV. Du som hyresgäst har även tillgång till bredbandsuppkoppling på 1Mbit/s.

  • Badrum: Dusch (ej badkar)
  • Badrum: Duschvägg/-dörrar
  • Badrum: Golvvärme i badrum
  • Badrum: Handdukstork
  • Badrum: Tvättmaskin finns
  • Balkong
  • Golv: Ekparkettgolv i rum
  • Golv: Klinkergolv i badrum
  • Kök: Diskmaskin finns
  • Kök: Kyl/frys
  • Kök: Spis med glaskeramikhäll
  • Lägenhetsförråd saknas
  • Postbox
  • Säkerhetsdörr

Rikshem reserverar sig mot eventuella fel eller avvikelser som kan förekomma i lägenhetsannonsen eller i planritningen.

Körfältet

Körfältet är ett populärt bostadsområde med närhet till det mesta. Omkring 1,5 kilometer från bostäderna hittar du Lillsjön och Remonthagen med dess grönområden där du vintertid kan åka längdskidor. Här bor du knappt tre kilometer från centrala Östersund och har promenadavstånd till Mittuniversitetet. I närheten har du Lillänge köpcentrum med butiker och restauranger. Bussförbindelserna in till Östersunds centrum är mycket goda.

Läs mer om området

 

Vår uthyrningspolicy

För att få hyra en lägenhet hos oss har vi vissa krav som måste uppfyllas, bland annat måste du ha fyllt 18 år och ha en inkomst så att du utifrån hyran uppfyller Konsumentverkets norm för skälig levnadsstandard för dig och din familj.

Läs mer i Rikshems uthyrningspolicy

Vanliga frågor och svar

Vi har samlat vanliga frågor och svar från våra bostadssökande och hyresgäster. Titta gärna igenom dem innan du kontaktar oss.

Sök bland våra vanliga frågor och svar