Sköldmövägen 17 A, Uppsala/Knivsta

  • 1 rum och kök S, 36 m²

Anmälan till detta objekt görs via Uppsala Bostadsförmedling

 
Visa stor bild Visa stor bild Visa stor bild Visa stor bild
  • Tillträde: 2026-07-01

Objektsinformation

  • Adress:
  • Sköldmövägen 17 A
  • Obj.nr:
  • 2236-1720053
  • Lgh.nr:
  • 1104
  • Rum:
  • 1 rum och kök S
  • Boyta:
  • 36 m²
  • Våning:
  • 2 av 2
  • Hyra:
  • 7 489 kr
  • Byggt:
  • 1967
  • Fastighet:
  • Byggnad:

Mer information

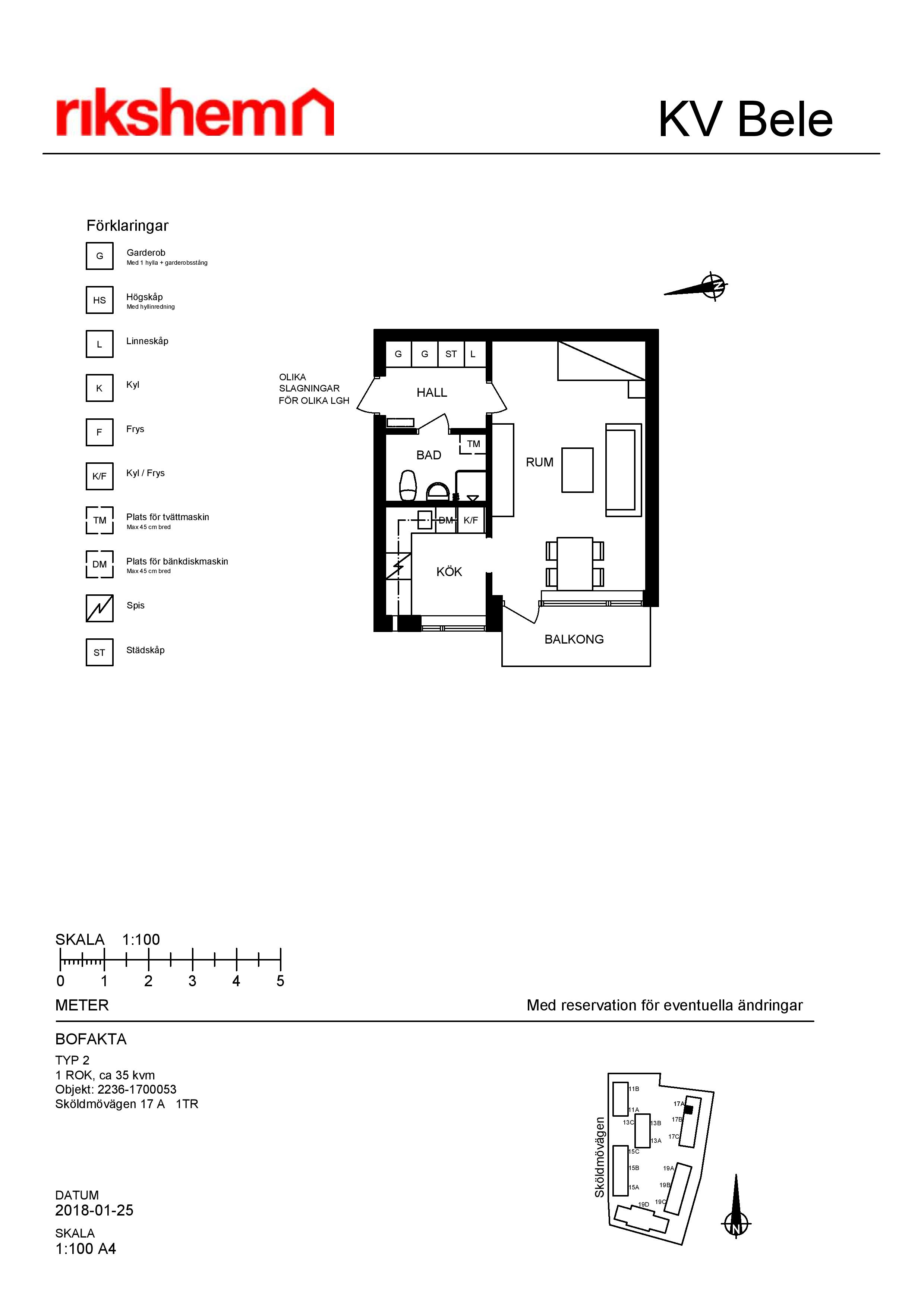
1 rum och kök i Gamla Uppsala!



I stadsdelen Gamla Uppsala finner du vårt bostadsområde Sköldmövägen. Här bor du i tvåvåningshus runt en stor och grön innergård med flera gemensamma uteplatser. Bra bussförbindelser och cykelväg till centrala Uppsala.

Om lägenheten:

- Hall med hatthylla för avhängning av ytterkläder samt garderober för förvaring.

- Helkaklat badrum med klinkergolv och golvvärme. I badrummet finns dusch, handfat samt wc. Förberett för tvättmaskin(går att beställa som tillval efter inflyttning.)

- Kök med kyl/frys, spis/ugn och fläkt. Diskmaskin finns installerad.

- Vardagsrum med vitmålade väggar och parkettgolv.

- Balkong med utgång från vardagsrummet. Se väderstreck i planritningen.

- Tillhörande lägenhetsförråd på källarplan.

- Tvättstuga finns i källaren på Sköldmövägen 13.

- P-platser söks separat på www.rikshem.se. Först till kvarn.

- Hyresgästen får hämta sina nycklar till lägenheten och fastigheten från kl. 14.00 den dag som lägenheten skall tillträdas. Hamnar inflyttningsdatumet på en helgdag så är det nästkommande vardag som gäller.



Stadsdelen Gamla Uppsala har anor från 500-talet och fornlämningarna vid Uppsala högar är ett populärt utflyktsmål. Här bor du med närhet till vacker natur och stora strövområden. Badplatser finns vid Fyrisån och Storvad.

  • Badrum: Dusch (ej badkar)
  • Badrum: Förberett för tvättmaskin
  • Badrum: Golvvärme i badrum
  • Balkong
  • Golv: Ekparkettgolv i rum
  • Kök: Diskmaskin finns
  • Kök: Kyl/frys
  • Kök: Spis med glaskeramikhäll
  • Lägenhetsförråd finns
  • Persienner ingår i lägenhetens standard
  • Säkerhetsdörr

Rikshem reserverar sig mot eventuella fel eller avvikelser som kan förekomma i lägenhetsannonsen eller i planritningen.

Gamla Uppsalabygden

I stadsdelen Gamla Uppsala, fyra kilometer norr om Uppsala, ligger Rikshems bostadsområde Sköldmövägen. Här bor du i tvåvåningshus med tillgång till en stor och grön innergård med flera gemensamma uteplatser. Här bor du med närhet till vacker natur och stora strövområden. Badplatser finns vid Fyrisån och Storvad. Bostadsområdet är barnvänligt. Förskola finns i närheten av bostäderna. Gamla Uppsala har bra bussförbindelser och cykelväg till de centrala delarna av staden.

Läs mer om området

 

Vår uthyrningspolicy

För att få hyra en lägenhet hos oss har vi vissa krav som måste uppfyllas, bland annat måste du ha fyllt 18 år och ha en inkomst så att du utifrån hyran uppfyller Konsumentverkets norm för skälig levnadsstandard för dig och din familj.

Läs mer i Rikshems uthyrningspolicy

Vanliga frågor och svar

Vi har samlat vanliga frågor och svar från våra bostadssökande och hyresgäster. Titta gärna igenom dem innan du kontaktar oss.

Sök bland våra vanliga frågor och svar